Extension de maison

Le défi réussi d’une extension sur une maison Phénix à Chevaigné (35250)

Ce projet d’extension sur une maison Phénix à Chevaigné a relevé tous les défis techniques. Il prouve qu’il est possible de métamorphoser même les maisons réputées peu modulables. L’agrandissement a permis de doubler la surface habitable de la maison, lui offrant une seconde vie, du confort, et surtout l’espace supplémentaire dont les propriétaires avaient besoin.

L’expertise de Cybel Extension face à une construction Phénix

Le modèle de maison Phénix, caractérisé par son ossature métallique, ses murs préfabriqués et son toit léger, représente un défi constructif majeur. Conçues en série dans les années 80, ces habitations de 50 m² ne sont initialement pas destinées à être modulées. 

L’objectif de l’agence Cybel Extension Rennes Nord, en charge du projet, était clair : transformer cette petite surface, à peine plus grande qu’un T2 sans garage, en une résidence familiale spacieuse, tout en garantissant la pérennité de la nouvelle structure. 

Un agrandissement de plain pied sur une maison Phénix à Chevaigné

L’agrandissement s’est implanté avec précision sur le pignon de la maison existante. Grâce à une étude minutieuse du plan local d’urbanisme (PLU) et du bâti, l’extension a pu être positionnée en limite de propriété et en bout de parcelle, une optimisation foncière cruciale pour maximiser l’usage du terrain.

Cette vaste addition de 80 mètres carrés de surface de plancher a permis de doubler la surface totale, offrant de multiples fonctionnalités essentielles qui faisaient cruellement défaut à la configuration initiale.

Une question sur votre projet ?

Nos conseillers vous répondent et organisent une visite conseils gratuite pour étudier la faisabilité du projet.

Contacter votre interlocuteur local
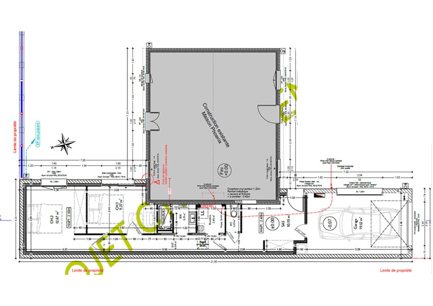
Plan de l'agrandissement de maison

L’extension a été dessinée en enfilade pour optimiser la circulation. Elle se compose d’un garage, la partie la plus avancée, suivi d’un sas d’entrée redéfini qui assure la transition vers les mètres carrés existants. Dans la continuité, orientées vers le jardin pour profiter d’une belle luminosité, ont été créées les pièces de nuit : deux nouvelles chambres et une salle d’eau indépendante.

L’ensemble de l’extension arbore un toit plat (ou toiture-terrasse) et des façades revêtues d’un enduit contemporain. Cette esthétique épurée tranche délibérément avec le volume initial de la Phénix, apportant une touche résolument moderne et valorisante à l’ensemble immobilier.

Une liaison soignée pour un ensemble harmonieux à Chevaigné

L’un des succès majeurs de ce projet d’agrandissement à Chevaigné est la fluidité obtenue entre les deux volumes. Pour une liaison visuelle plus harmonieuse, nous avons modifié les fenêtres de la maison existante afin qu’elles adoptent le même style et les mêmes menuiseries que l’extension. Les terrasses existantes ont été conservées, enrichissant les espaces extérieurs.

Ce projet démontre qu’avec l’expertise de Cybel Extension, les contraintes initiales peuvent être transformées en atouts majeurs, offrant une plus-value exceptionnelle au patrimoine de nos clients.

Vos extensions, nos réalisations, merci pour votre confiance

En bois, en brique, à toit plat, en ardoises ou en tuiles, sur piloti ou de plain pied,… la variété de nos extensions est le reflet des goûts de nos clients et de l’inspiration de notre bureau d’études et architecte partenaire. Nous vous les dévoilons pour notre plus grand plaisir !

Go to top of page